
-Daniel Libeskind
|
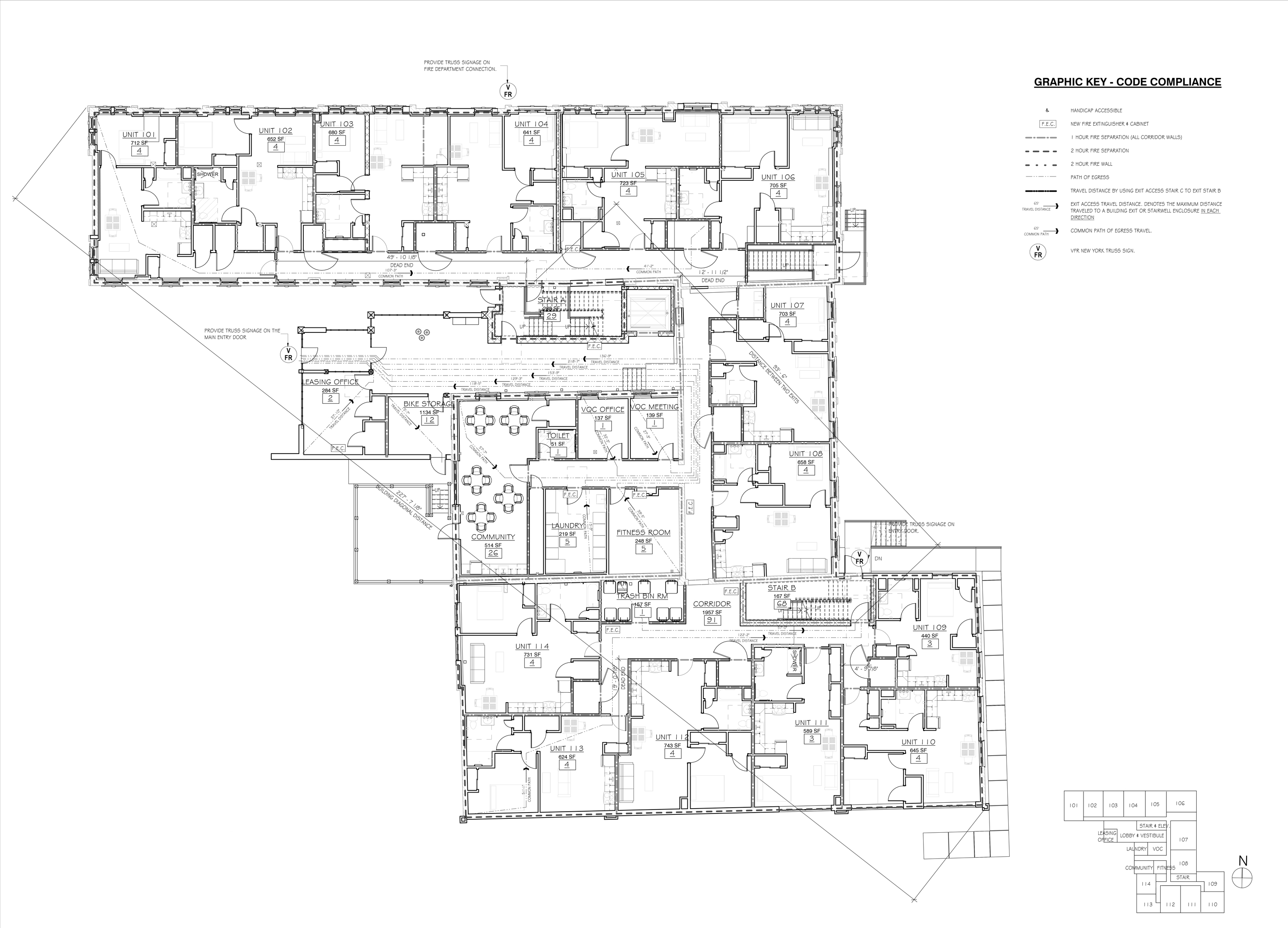
The Huntington Apartments project involves the preservation of the historic 1870-era National Yeast Co. building, which is recognized as one of the Landmark Society of Western New York’s Five to Revive (2018). The structure is a three-story building with an attached one-story garage. The objective of the project is to transform the former automotive shop into 53 units of affordable housing apartments. key challenge for the design team is to not only explore the possibilities of construction but also maintain the historical appearance of the building. This includes the restoration of the former mansard roof on the fourth floor and the creation of additional living units. The goal is to seamlessly blend modern functionality and amenities with the architectural heritage of the building. The design team will carefully consider historical preservation techniques and materials to ensure the project respects the building’s original character while meeting contemporary housing needs. |
||||||||||||
|
||||||||||||
|

| PRE-DESIGN |
|
PROGRAMMING |
|
||
| SD |
|
DD |
|
||
| CD |
|
CA |
|
||
CODE COMPLIANCE
HUNTINGTON CODE REVIEW
HUNTINGTON CODE COMPLIANCE DRAWING
FLOOR PLAN
HUNTINGTON APARTMENT 1st FLOOR PLAN
HUNTINGTON APARTMENT 2nd FLOOR PLAN
HUNTINGTON APARTMENT 3rd FLOOR PLAN
HUNTINGTON APARTMENT 4th FLOOR PLAN - MANSARD
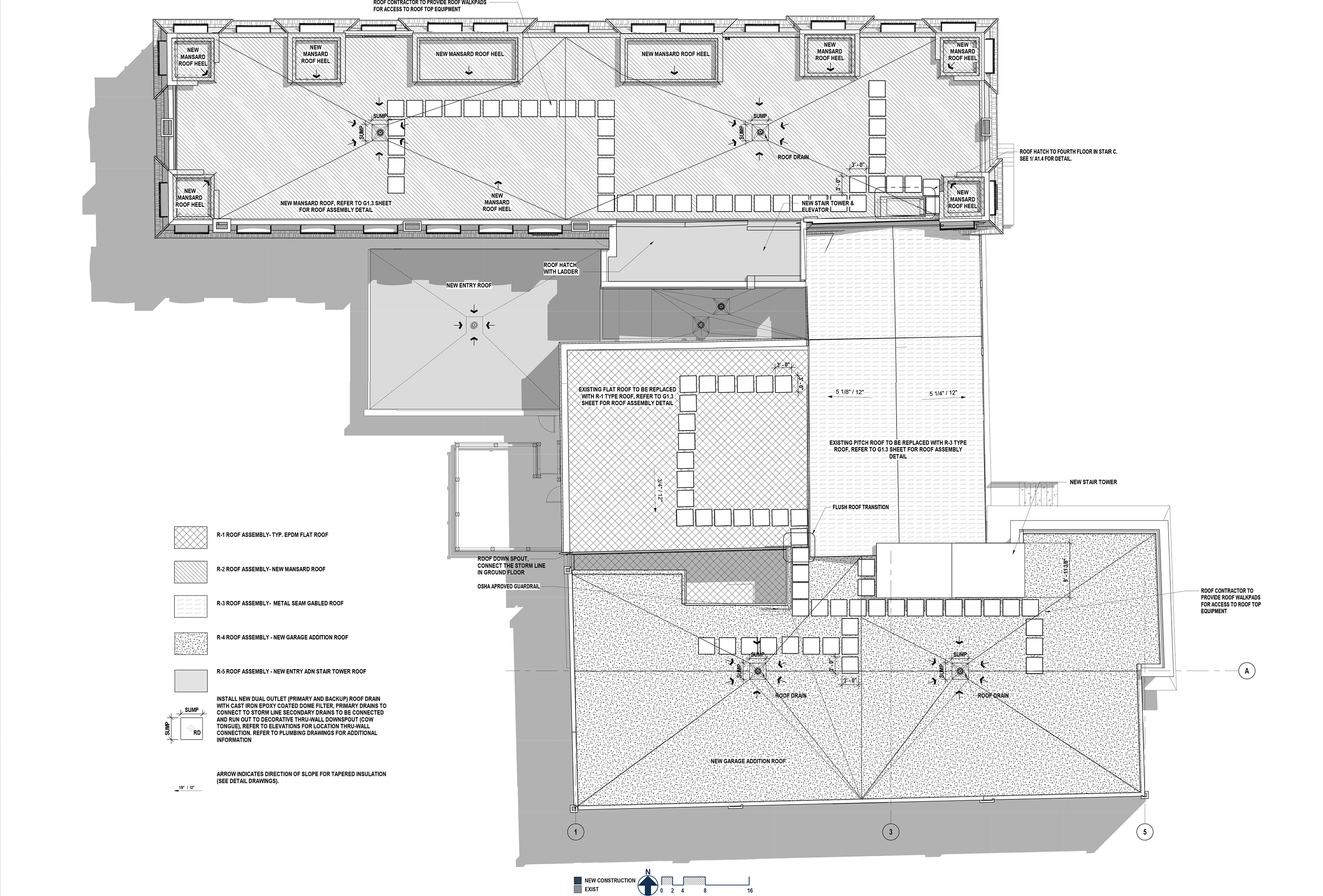
HUNTINGTON APARTMENT ROOF PLAN
ELEVATION / SECTION
HUNTINGTON APARTMENT NORTH ELEVATION
HUNTINGTON APARTMENT EAST ELEVATION
HUNTINGTON APARTMENT SOUTH ELEVATION
HUNTINGTON APARTMENT WEST ELEVATION
DETAILS
HUNTINGTON APARTMENT MANSARD DETAILS
HUNTINGTON APARTMENT HISTORICAL WINDOW DETAILS